NOS ESPACES DISPONIBLES

Un partenaire de confiance et fiable pour la location industrielle et de prêt hypothécaire depuis 1996

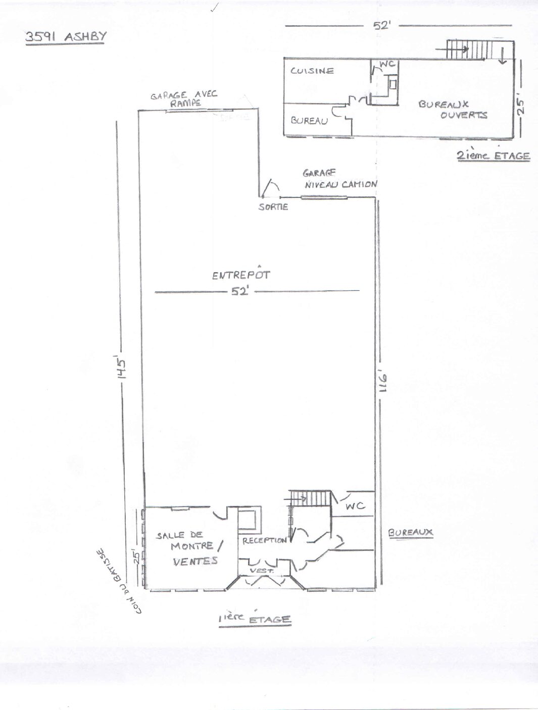
Entrepôt Industriels avec Bureaux

  • 3596 Poirier, Québec, Canada H4R2J5

3,700  p.c, Unité recherché et ensoleillé, près de la Place Vertu, dans une bâtisse moderne.  Bureaux air climatisés au 1re étage (RDC) et deuxième étage: réception avec espace à aire ouverte, 3 bureaux fermés/salle de conférence, 2 w/c et cuisinette. Entrepôt de 2,400 pc &  20′ d’hauteur, avec 1 portes garage (niveau camion)

Accès facile au transport publique, (autobus no. 70) centre commercial, autoroutes 40 et 13 et l’aéroport, beaucoup de stationnement.

Loyer Net: 10.95/p.c

Frais:          $6.50 /p.c

Prix brût:  $5,400 approx./ mois + énergie (+3%/an)

disponible 1 mars 2026

  • 3594 Poirier, Québec, Canada H4R2J5

7,400  p.c, Unité recherché et ensoleillé, près de la Place Vertu, dans une bâtisse moderne.  Bureaux air climatisés au 1re étage  (RDC) et deuxième étage: réception avec espace à aire ouverte, 6 bureaux fermés/salle de conférence, 4 w/c et 2 cuisinette. Entrepôt de 4,800 pc &  20′ d’hauteur, avec 2 portes garage (niveau camion)

Accès facile au transport publique, (autobus no. 70) centre commercial, autoroutes 40 et 13 et l’aéroport, beaucoup de stationnement.

Loyer Net: 10.95/p.c

Frais:          $6.50 /p.c

Prix brût:  $10,750 approx./ mois + énergie (+3%/an)

disponible 1 mars 2026

Bureaux seulement

  • 3582 Poirier, Québec, Canada H4R 2J5

Bureau de 2,000  p.c. au deuxième étage dans une bâtisse moderne et bien entretenu.

Unité de coin, impeccable, moderne et très ensoleillé.  Climatisé. 

Avec: réception, grande espace ouverte de travail, 5 grands bureaux fermés/salle de conférence,   2 w/c et cuisine.

Environs de Thimens, près de Place Vertu et services commerciales,  accès facile aux autoroutes 40 et 13 et l’aéroport, et transport en commun à deux pas (autobus no. 70).  Beaucoup de stationnement.

Loyer Net: $7.00 /p.c +

Frais:          $6.50/p.c

Prix brût:  $2,250 / mois approx + énergie + TPS/TVQ

Disponible 1 novembre 2025

  • 3545 Ashby, Québec, Canada H4R 2K3

Bureau de 1,375  p.c. au deuxième étage dans une bâtisse moderne et bien entretenu.

Unité de coin, impeccable, moderne et très ensoleillé.  Climatisé. 

Avec: réception, 4 grands bureaux fermés/, grande espace ouverte de travail, salle de conference,  2 w/c et cuisine.

Environs de Thimens, près de Place Vertu et services commerciales,  accès facile aux autoroutes 40 et 13 et l’aéroport, et transport en commun à deux pas (autobus no. 70).  Beaucoup de stationnement.

Loyer Net: $10.00 /p.c +

Frais:          $6.05 /p.c

Prix brût:  $1,825 / mois approx + énergie + TPS/TVQ

Disponible 1 nocembre 2025